Ricardo Cachoua
Ricardo Cachoua
  • Cell: +525548660955
  • Office: 5548660955
  • Email: faburto@solininmuebles.com.mx

VENTA LOCALES COMERCIALES PLAZA KIWIK, TULUM (UBICADÍSIMO) CC

Tulum Centro, Tulum

$48,468,274.12 For Sale

  • 383 m² total space
  • EB-SC1114 ID
Description

Información General
Ubicación:
KIWIK está estratégicamente ubicado en Av. Tulum y Av. Cobá, cerca de la zona hotelera, Aldea Zamá, Tulum Centro, y otros puntos destacados.
Tráfico vehicular:
Av. Tulum: 7,200 autos/hora.
Av. Cobá: 6,500 autos/hora
.
Participaciones limitadas: Solo 35 disponibles, válidas hasta el 10 de marzo de 2025
.
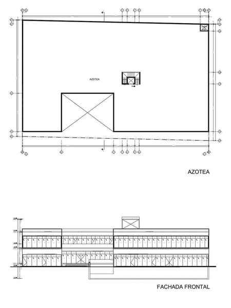
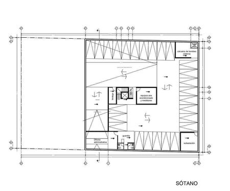
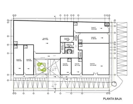
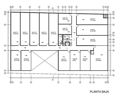
Dimensiones y Distribución
Superficie Total:

Sótano: 926.17 m²
Planta Baja: 1,081.67 m²
Planta Alta: 1,056.23 m²
Azotea (circulación): 19.09 m²
.
Locales Comerciales:

Planta Baja: Áreas desde 7 m² hasta 383 m²
.
Nivel 1: Áreas desde 43 m² hasta 135 m²
.
Costos y Opciones de Pago
Planta Baja:

Local más pequeño: 20 m², $2,735,851.76 (sin descuento).
Local más grande: 383 m², $48,468,274.12 (sin descuento)
.
Nivel 1:

Local más pequeño: 43 m², $2,903,764.71 (sin descuento).
Local más grande: 135 m², $13,934,117.65 (sin descuento)
.
Costos y Opciones de Pago
Planta Baja:

Local más pequeño: 20 m², $2,735,851.76 (sin descuento).
Local más grande: 383 m², $48,468,274.12 (sin descuento)
.
Nivel 1:

Local más pequeño: 43 m², $2,903,764.71 (sin descuento).
Local más grande: 135 m², $13,934,117.65 (sin descuento)
.
Planes de Pago Disponibles:

30-60-10:

30% de enganche inicial.
60% dividido en pagos mensuales.
10% al finalizar la construcción o entrega del local.
50-40-10:

50% de enganche inicial.
40% dividido en pagos mensuales.
10% al finalizar la construcción o entrega del local.
90-10:

90% de pago inicial.
10% al finalizar la construcción o entrega del local.
Descuentos Disponibles:

6% de descuento sobre el precio total.
15% de descuento sobre el precio total
.
Infraestructura
Áreas Comunes:
Espacios administrativos .
Subestación eléctrica , equipos de aire acondicionado y sistemas de bombeo .
Accesibilidad: Rampas con pendientes específicas (hasta 20%)

Ricardo Cachoua
Ricardo Cachoua
  • Cell: +525548660955
  • Office: 5548660955
  • Email: faburto@solininmuebles.com.mx
Ricardo Cachoua
Ricardo Cachoua
  • Cell: +525548660955
  • Office: 5548660955
  • Email: faburto@solininmuebles.com.mx